4+1 bedroom villa, with swimming pool, located in the best location in São João do Estoril, inserted in a 545 sqm plot, deeply renovated.
With a 203 sqm gross private area, distributed over three floors and with garage, the villa is composed by:
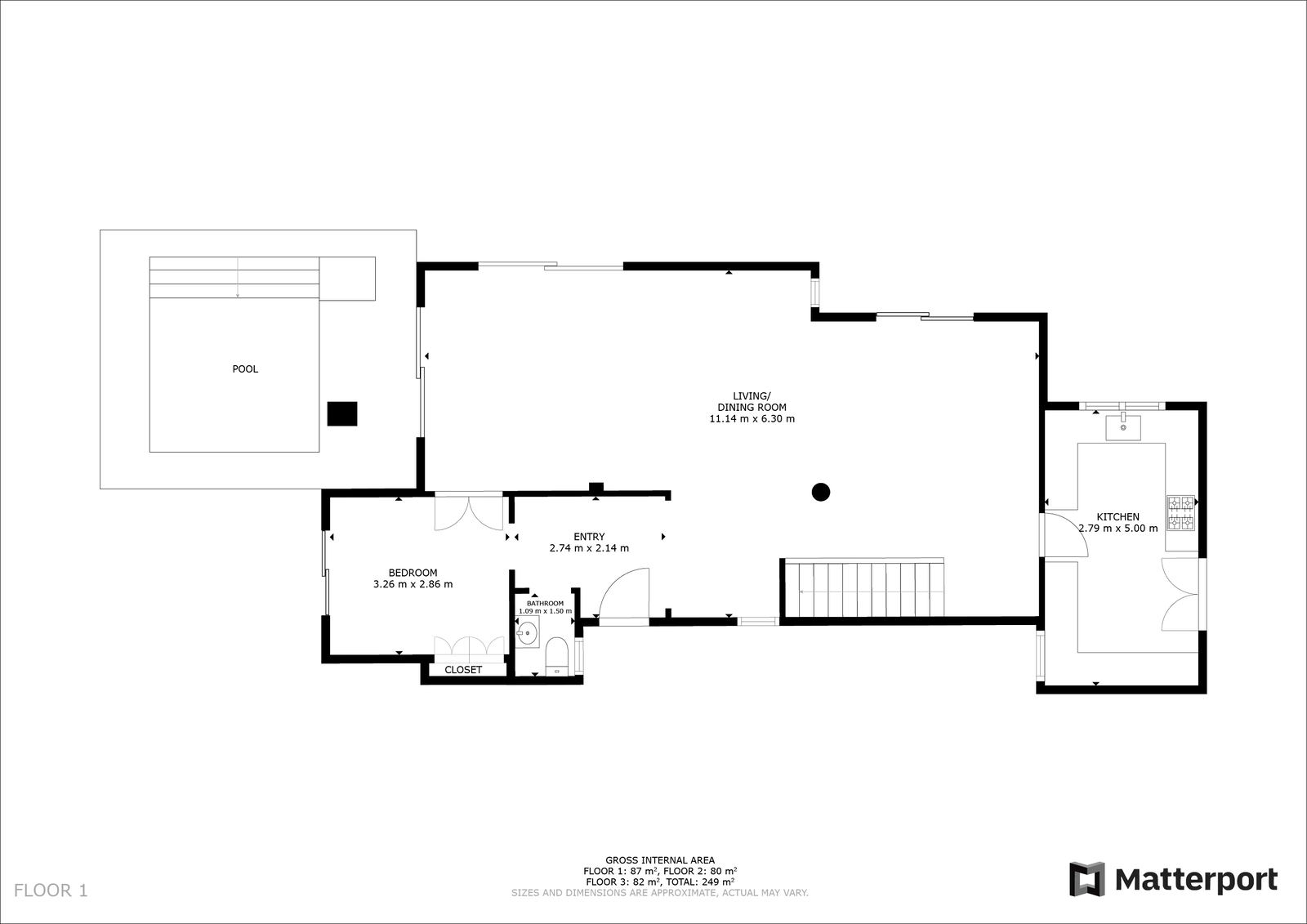
Ground Floor:
– Entry Hall
– Office
– Social bathroom
– Kitchen
– Living room with high ceiling
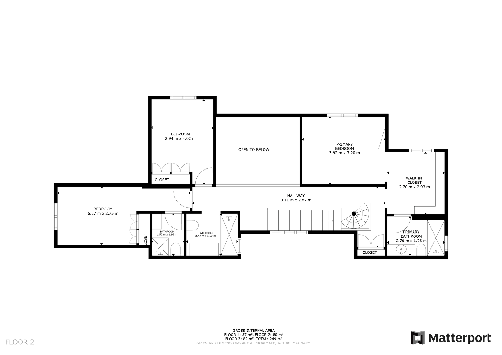
First Floor:
– Master Suite with walk-in closet
– Suite
– Bedroom
– Bathroom to support the bedroom
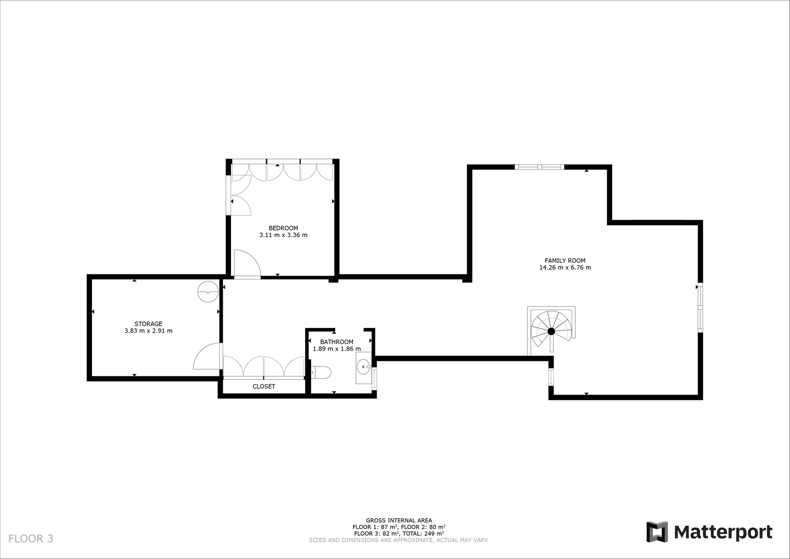
Second Floor:
– Ample living room with high ceiling
– Bedroom
– Full private bathroom
– Technical and storage area
It is a house full of light, with the highest quality materials, photovoltaic panels and solar thermal panels, air conditioning in all divisions and home automation for lighting and pre-installation of electrical blinds.
The exterior area comprises a beautiful garden, a new swimming pool and still the garage and laundry area.
Cascais is a Portuguese village famous for its bay, local business and cosmopolitanism. It is considered the most sophisticated destination of the Lisbon’s region, where small palaces and refined and elegant constructions prevail. With the sea as a scenario, Cascais can be proud of having 7 golf courses, a casino, a marina and countless leisure areas. It is 30 minutes away from Lisbon and its international airport.
Porta da Frente Christie’s is a real estate agency that has been operating in the market for more than two decades. Its focus lays on the highest quality houses and developments, not only in the selling market, but also in the renting market. The company was elected by the prestigious brand Christie’s International Real Estate to represent Portugal in the areas of Lisbon, Cascais, Oeiras and Alentejo. The main purpose of Porta da Frente Christie’s is to offer a top-notch service to our customers.
















































