4-Bedroom Villa under Construction with Pool, Garage, Garden, and River View – at Alto do Lagoal, Caxias (Oeiras)
Located in Alto do Lagoal in Caxias, Oeiras, one of the most sought-after areas in the municipality, this 4-bedroom villa offers river views, proximity to the beaches and the Jamor sports complex. The property sits on a 782 m² plot.
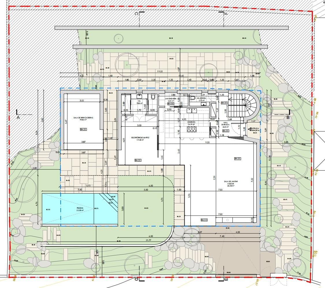
Distributed over 3 floors:
• Ground Floor (Floor 0):
• Garage for 4 cars (33.09 m²)
• Storage room (19.01 m²)
• Full bathroom (3.8 m²)
• Technical area (13.4 m²)
First Floor (Floor 1):
• Entrance hall (5.65 m²)
• Guest bathroom (2.73 m²)
• Living and dining room (65.3 m²)
• Open-plan kitchen (14.19 m²)
• Laundry room (3.43 m²)
• Suite/Office (17.3 m²) with full bathroom (7 m²)
• Games room (19.86 m²)
Second Floor (Floor 2):
• Master suite (23.03 m²), east-facing, with walk-in closet (6.33 m²) and full bathroom (8.64 m²) with shower and bathtub
• Suite (15.46 m²) with built-in wardrobes and full bathroom (3.81 m²)
• Suite (16.26 m²) with built-in wardrobes and full bathroom (3.81 m²)
• Circulation area between rooms (12.77 m²) with access to a storage space (1.92 m²)
• All suites have access to a large 34 m² Terrace with river views.
Oeiras is one of the most developed municipalities in Portugal, enjoying a privileged location just minutes from Lisbon and Cascais. Restored, charming buildings coexist in harmony with modern developments.
Porta da Frente Christie’s is a real estate brokerage firm operating for over two decades, specializing in top-tier properties and developments for both sale and rental. The company has been selected by the prestigious Christie’s International Real Estate brand to represent Portugal in the regions of Lisbon, Cascais, Oeiras, and Alentejo. Porta da Frente Christie’s is committed to delivering a service of excellence to all our clients.


























