This substantial house of approximately 300 m2 is perfect for a large family, many friends or perhaps as a generational home.
The house can be divided into three independent parts if desired, but works equally well as a large two-storey property plus a separate studio facing the pool.
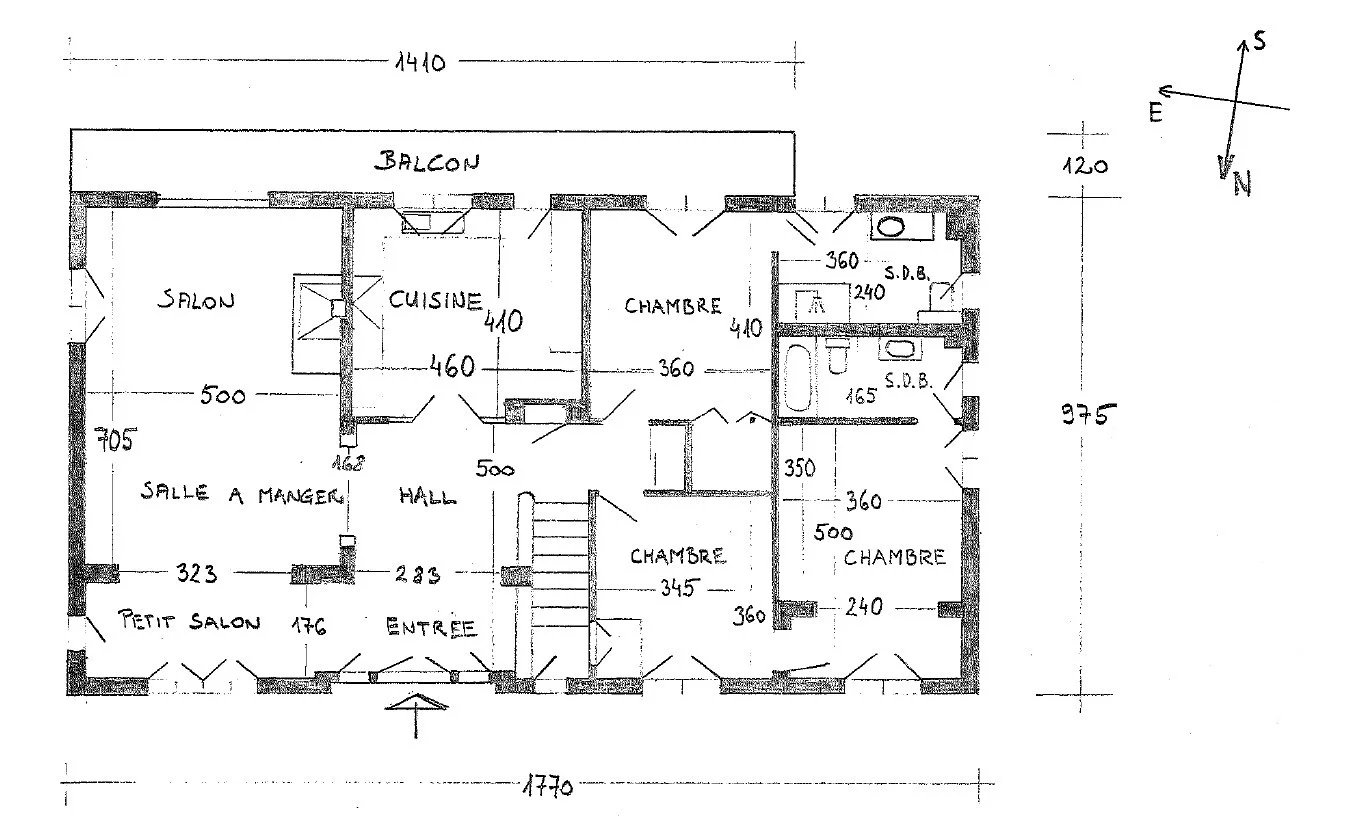
On the entrance level is the large living room with spacious dining area and lounge. Here we also find a large individual kitchen with a private balcony. There are also two bedrooms on this level, both with their own bathroom with WC and one with a dressing room. The second bedroom is equipped with its own office/library room which you pass through on the way to the bedroom itself.
Downstairs we find a bedroom with bathroom and WC en suite that has access to the second kitchen, which is a spacious open-plan kitchen with dining/living room adjacent. There are two further bedrooms sharing a shower room and an individual WC. The first bedroom also has direct access to the terrace overlooking the pool. On this level there are also spaces for storage and laundry.
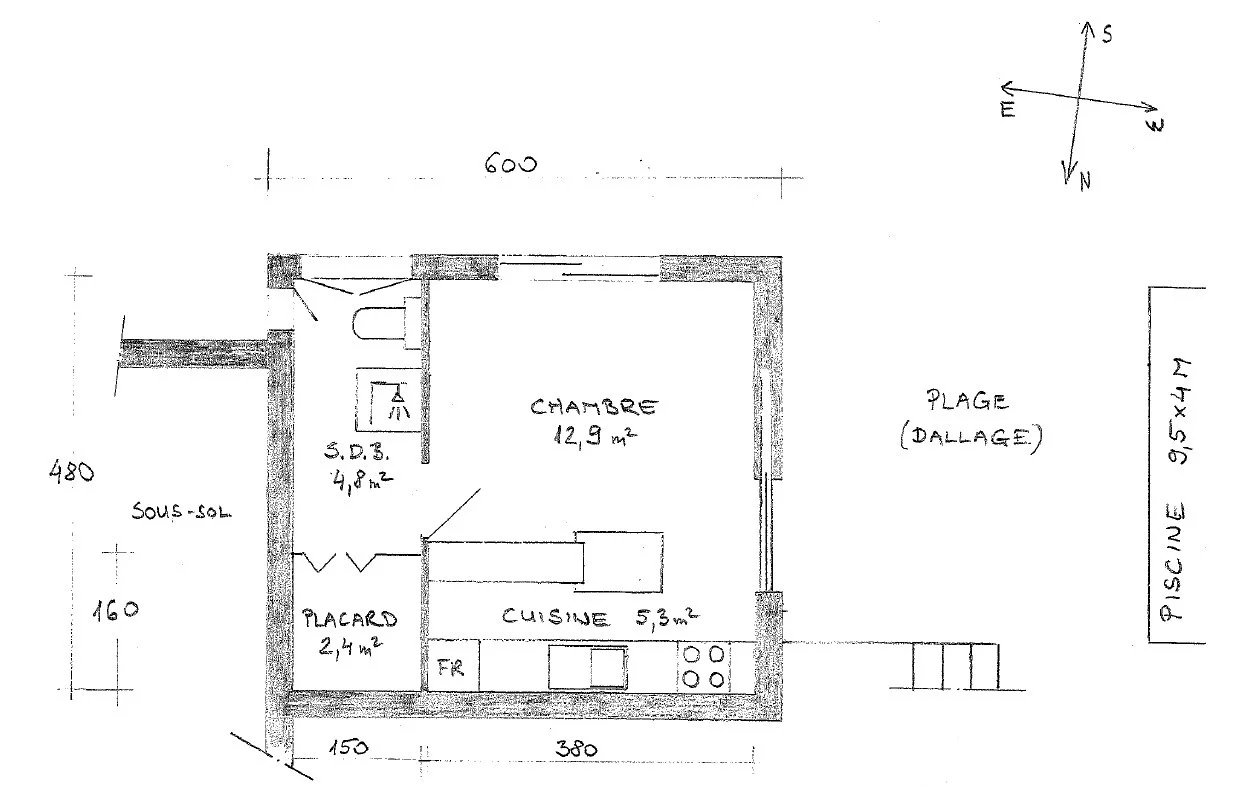
With a separate entrance from the western part of the garden, we find a studio, with equipped kitchen, shower room with WC and a 13 m2 living room. From here you have direct access to the pool and garden.
The garden is extensive and runs virtually around the entire house, on one gable facing west is the beautiful pool. The pool is large, about 40 m2 and it invites both play and exercise. The garden is mostly secluded to enjoy undisturbed days in the sun.
There is a spacious detached garage on the plot and there are places to park at least 6 cars.
The house is within walking distance, less than 1km, to the pretty pedestrianised street of La Colle-sur-Loup, where you will find everything you need in terms of shops and restaurants. It is less than 9 km to the sea and the nearest beach in Cagnes-sur-mer.





































