3 Bedroom Duplex Apartment in the Legacy Cascais, excellently located in the heart of Cascais.
With top-quality finishes, this apartment comprises 3 suites, a fully equipped kitchen and two charming balconies.
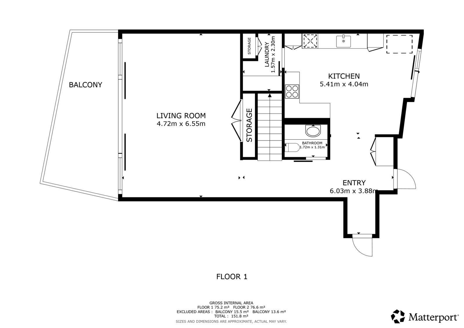
It features a spacious entrance hall that leads to the dining area and to a fully equipped kitchen. There is also a laundry area and a technical area.
An ample living room follows, with direct access to the balcony, creating the perfect indoor-outdoor living experience.
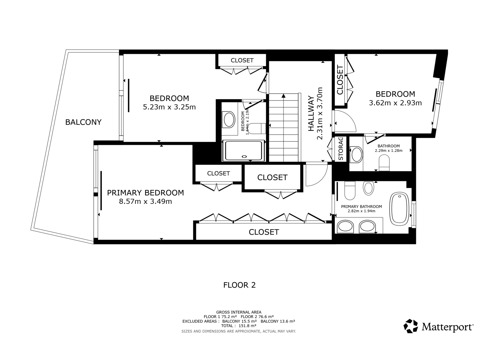
On the upper floor, there are three spacious suites, all with embedded wardrobes.
This luxurious apartment is finished to a high standard, with air conditioning in all rooms, radiant floor heating in the bathrooms and three parking spaces and a storage room.
The Legacy in central Cascais includes apartments, a 5-star hotel and townhouses.
Its amenities include concierge service, doorman, gym, spa, communal and private swimming pools and landscaped gardens.
Just 20 minutes from Lisbon, Cascais is a charming Portuguese village known for its bay of beaches, shopping, and cosmopolitan lifestyle. Considered the most sophisticated destination in the Lisbon area, it is distinguished by elegant manors and refined architecture. With the Atlantic at its doorstep, Cascais boasts 7 golf courses, a casino, a marina, and countless leisure options. Just 30 minutes from Lisbon and the international airport, it is also served by several international schools.
Porta da Frente Christie’s is a real estate agency that has been operating in the market for more than two decades. Its focus lays on the highest quality houses and developments, not only in the selling market, but also in the renting market. The company was elected by the prestigious brand Christie’s International Real Estate to represent Portugal in the areas of Lisbon, Cascais, Oeiras and Alentejo. The main purpose of Porta da Frente Christie’s is to offer a top-notch service to our customers.





































